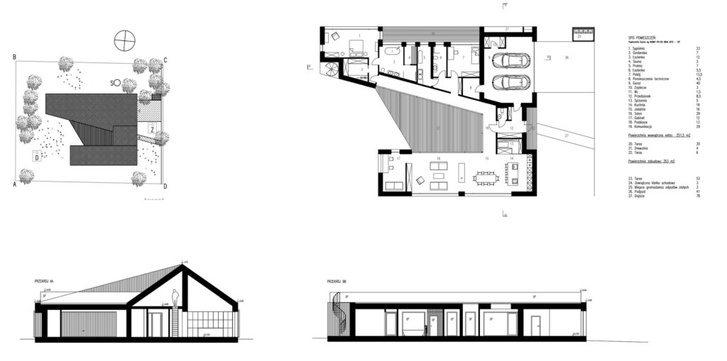
HUS Żółwin Projekt: budynek rekreacji indywidualnej Powierzchnia użytkowa domu: 251,5 m2Powierzchnia działki: 1400 m2Lokalizacja: Żółwin Facebook Youtube Instagram Etsy