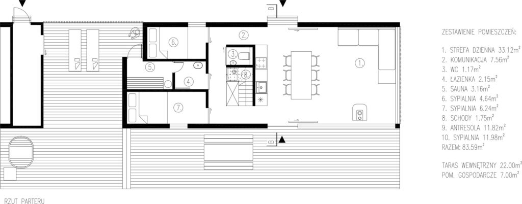
HUS Widaczów Projekt: ośrodek wypoczynkowy Powierzchnia użytkowa domku: 84 m2 Powierzchnia działki: 12500 m2Lokalizacja: Widaczów Facebook Youtube Instagram Etsy